Loft Bunk Bed Plans With Pictures

Thumbnail Loft Bunk Bed Plans With Pictures
6.99 USD
Add To Basket

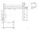
These plans are for the Do-It-Yourselfer for anyone looking to save quite a bit of money like we did. Plans include a diagram, dimensions and...